Call to Action

Weston Road, Llanrumney, Cardiff. CF3

EXCHANGED

£265,000

( Guide Price )

  • **GUIDE PRICE- £265,000-£280,000**
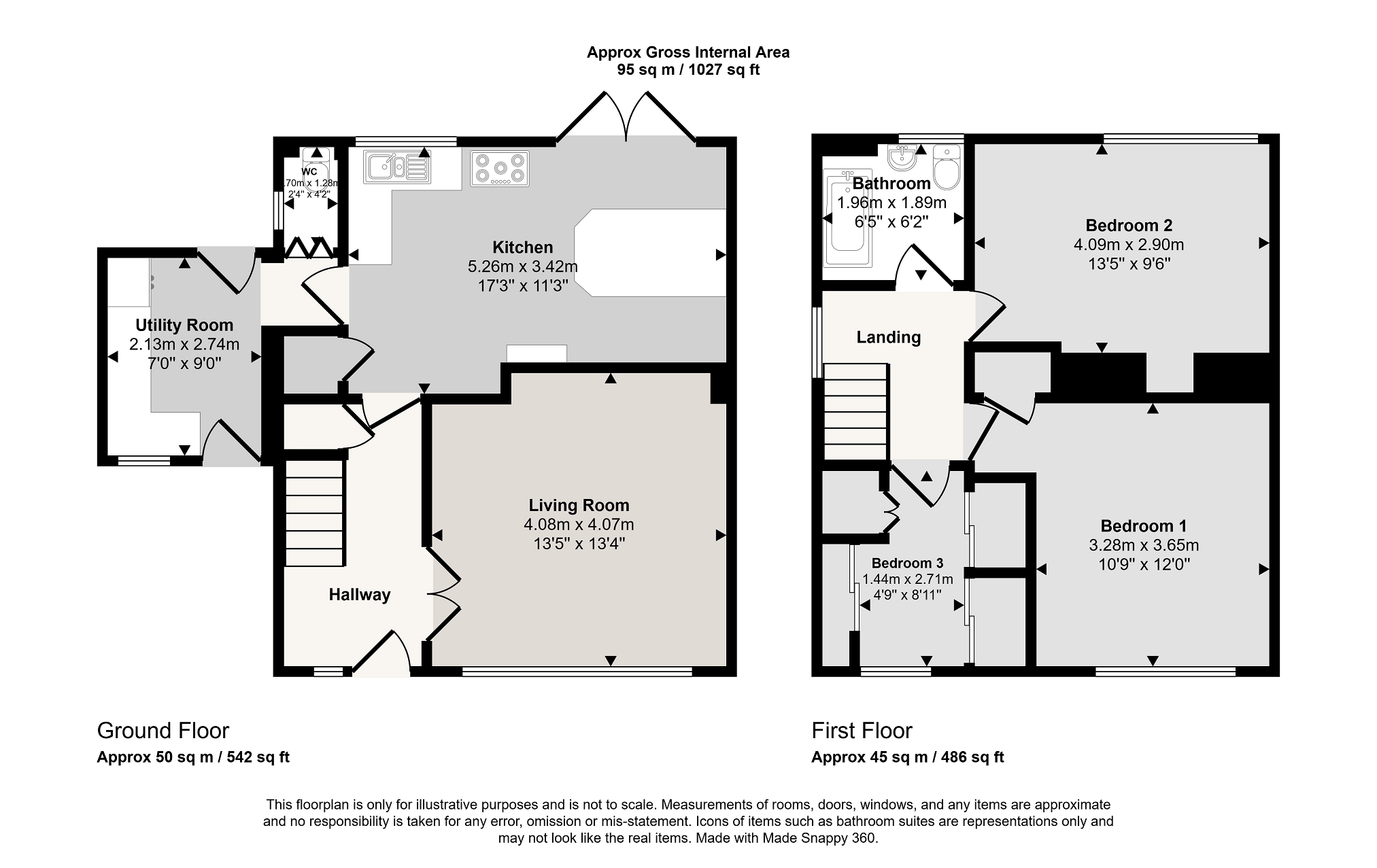
  • Three Bedroom Semi Detached House
  • Open Plan Kitchen/Diner
  • Utility Room and WC
  • Feature Pergola In Rear Garden
  • Ready To Move Into!
  • Off Road Parking
  • EPC Rating- TBC
  • Council Tax Band- C

  • New to the market and ready to impress is this stunning 3-bedroom semi-detached home! From the moment you walk through the door, you'll be welcomed by a warm and inviting hallway, setting the stage for the charm and elegance throughout. The living room is a highlight, tastefully decorated with a luxurious touch. A large window floods the space with natural light, creating a bright and welcoming ambiance, perfect for cosy evenings or entertaining guests. The heart of the home, the kitchen, is thoughtfully designed for family living. A modern breakfast bar combines style and functionality, while abundant cupboard space ensures you'll never run short of storage. Adjacent to the kitchen, you'll find a spacious utility room and a convenient downstairs WC, adding practicality. It is important to note, a new boiler was fitted as of 2024, including a 10 year warranty. Upstairs, you'll find the aforementioned bedrooms, each offering a cosy retreat. The family bathroom is modern and sleek, providing a tranquil space to unwind. The outdoor space is equally impressive. The rear garden boasts a decked area, low maintenance artificial lawn and a large pergola area perfect for hosting family BBQs and gatherings. Located close to local amenities and shops, this home is as convenient as it is beautiful. Properties like this don't stay on the market for long-don't miss your chance! Call us today 02920797919 to book a viewing and see this exceptional home for yourself!
    Entrance Hall
    Storage cupboard under stairs, painted walls, painted ceiling with coving, laminate flooring, radiator.

    Living Room
    Window to front, painted walls, painted ceiling with coving, laminate flooring, radiator.

    Kitchen/Breakfast Room
    Contemporary style kitchen fitted with a range of wall and base units, complimenting work surface with one and a half bowl sink and mixer tap, gas hob with extractor fan set above and integrated oven, stylish breakfast bar with seating ideal for family living, window to rear, painted walls, painted ceiling with coving, laminate flooring, french doors leading to garden.

    Utility Room
    Range of wall and base units with complimenting work surfaces, door and window to front, door to rear, space for white goods, painted walls, painted ceiling, laminate flooring.

    WC
    Window to side, close couple WC, tiled walls, tiled flooring, painted ceiling. Cupboard housing newly fitted boiler (2024, including 10 year warranty).

    Garden
    Low maintenance garden with remainder artificial grass, decked area, pergola situated at the rear of the garden.

    Landing
    Window to side, painted walls, painted ceiling with coving, carpet flooring, access to loft.

    Bathroom
    Window to rear, fully tiled walls, tiled flooring, close couple WC, vanity wash hand basin with mixer tap, bath with wall mounted waterfall shower, recessed spotlights, radiator.

    Bedroom 1
    Window to front, storage cupboard, painted walls, painted ceiling with coving, carpet flooring, radiator.

    Bedroom 2
    Window to rear, painted walls, painted ceiling with coving, carpet flooring, radiator.

    Bedroom 3
    Window to front, painted walls, painted ceiling with recessed spotlights, carpet flooring, radiator.


    To request a viewing for this property, please complete the form below:

    Web Design by AgentPro