Call to Action

Ty Fry Gardens, Rumney, Cardiff. CF3

AVAILABLE

£340,000

  • Three Bedroom Family Home
  • Garage Conversion - En Suite + Air Conditioning
  • Open Plan Kitchen/Dining Room
  • Living Room
  • Main Bedroom with Dressing Room & En Suite
  • Enclosed Rear Garden
  • Off Road Parking
  • EPC Rating: TBC
  • Council Tax Band: D

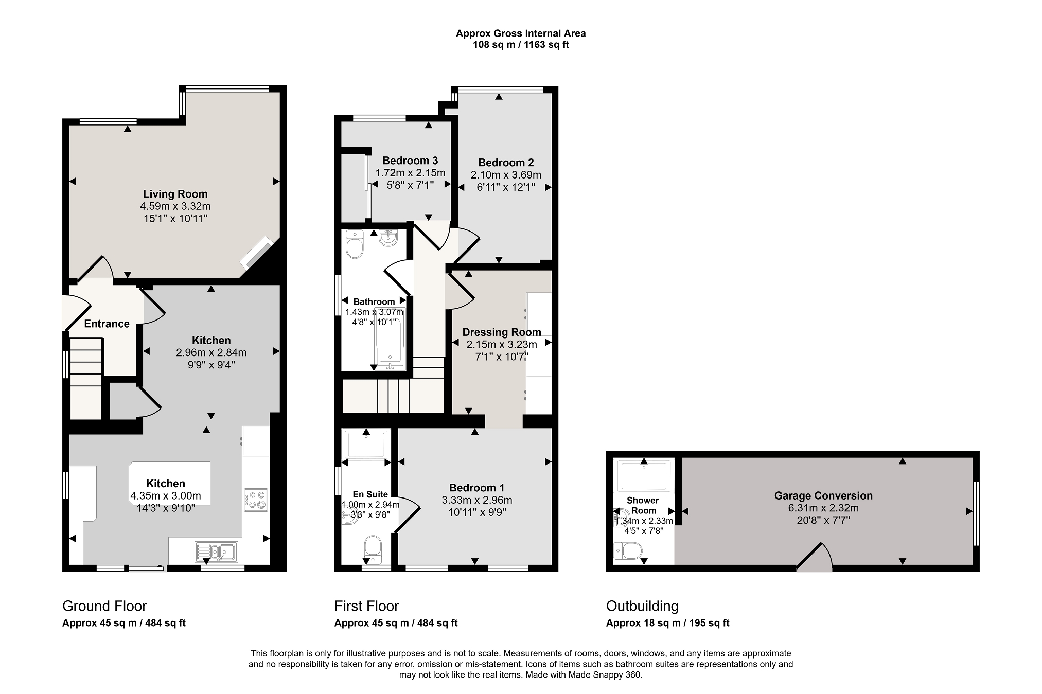
  • Located within a stone’s throw of Rumney Village and its array of local amenities, this beautifully presented three-bedroom home offers the perfect blend of modern living and family-friendly features. Step inside, the entrance hall that leads you to a spacious living room bathed in natural light. The open-plan dining area seamlessly flows into a contemporary kitchen, complete with a central island and sleek fittings- perfect for hosting family dinners or entertaining guests. One of the standout features of this property is the converted garage, which now serves as a versatile fourth bedroom, ideal for a growing family or as a comfortable guest suite. This space benefits from its own shower room, adding an extra layer of convenience. Upstairs, the main bedroom is a focal point of its own, featuring a dressing room and a modern en suite shower. Two further bedrooms and a family bathroom with a luxurious jacuzzi bath ensure there’s ample space for everyone. Outside, the property boasts off-road parking via a private driveway and a landscaped rear garden designed for relaxing summer evenings. This is a rare opportunity to own a spacious and stylish home in one of Rumney’s most desirable locations. Don’t miss out!
    Front
    Tarmac laid driveway with decorative brick boarder, side access to rear garden, entrance door leading into entrance hall;

    Entrance Hall
    Entrance hall comprising of wood effect flooring, doors leading to living room, dining room and stairs leading to first floor.

    Living Room
    Two large windows to front aspect, carpet flooring, painted ceiling, painted walls with feature wall papered wall, radiator.

    Dining Area
    Painted ceiling, painted wall with feature split face tiled wall, wood effect flooring, radiator, storage cupboard, recessed spot lights, open plan into kitchen area;

    Kitchen
    Range of wall and base units with centralised island, stainless steel sink with mixer tap sep upon complimenting work surfaces, fitted gas hob with extractor fan set above, oven set with tower unit, space for white goods, painted walls and ceiling, window and patio doors to rear aspect, vertical radiator, recessed spot lights, wood effect flooring continued from dining area.

    Landing
    Painted walls and ceiling, carpet flooring, doors leading to all bedrooms and bathroom.

    Dressing Room
    Dressing area with fitted wardrobes, painted walls and ceiling with coving, carpet flooring, radiator, entrance to bedroom 1 and en-suite.

    Bedroom 1
    Bedroom 1 comprising of two windows to rear aspect, carpet flooring, painted walls and ceiling with feature papered wall, radiator, entrance to en-suite.

    En Suite
    En-suite comprising of walk in shower cubicle, vanity wash hand basin, close couple WC, window to rear aspect, tiled walls and floors, painted ceiling, heated towel rail.

    Bedroom 2
    Bedroom 2 comprising of painted walls and ceiling, carpet flooring, window to front aspect, radiator.

    Bedroom 3
    Bedroom 3 comprising of painted walls and ceiling, carpet flooring, window to front aspect, radiator, fitted wardrobes.

    Bathroom
    Panelled bath with jets and hot and cold taps, vanity unit with sink and toilet set within, tiled walls and flooring, heated towel rail, glazed window to side aspect, fitted storage cupboard.

    Rear Garden
    Landscaped enclosed rear garden, resin patio area with artificial grass laid, decorative shrubs to boarder with side access leading to front aspect, access to garage conversion.

    Garage/Conversion
    Garage converted into 4th bedroom, carpet flooring, window to front and side aspect, door to rear garden, painted walls and ceiling, electricity, air conditioning unit installed, shower room fitted with close WC, pedestal wash hand basin, walk in shower with wall mounted electric shower.


    To request a viewing for this property, please complete the form below:

    Web Design by AgentPro